
Led by: Gramaze Network for Community Growth & Development
Status: Ongoing
As part of our commitment to strengthening education and community development across Bende LGA, Gramaze Network for Community Growth & Development participated in a joint effort with the South East Education Intervention Fund (SEEIF) to renovate Ozuitem Secondary School.
While SEEIF supported the broader school renovation initiative, Gramaze Network and its other partners is solely responsible for the full reconstruction and modernization of the school library—a dedicated project we initiated to promote reading culture and create a better learning environment for the students.
Scope of Gramaze’s Library Project
- Complete renovation of the old library space
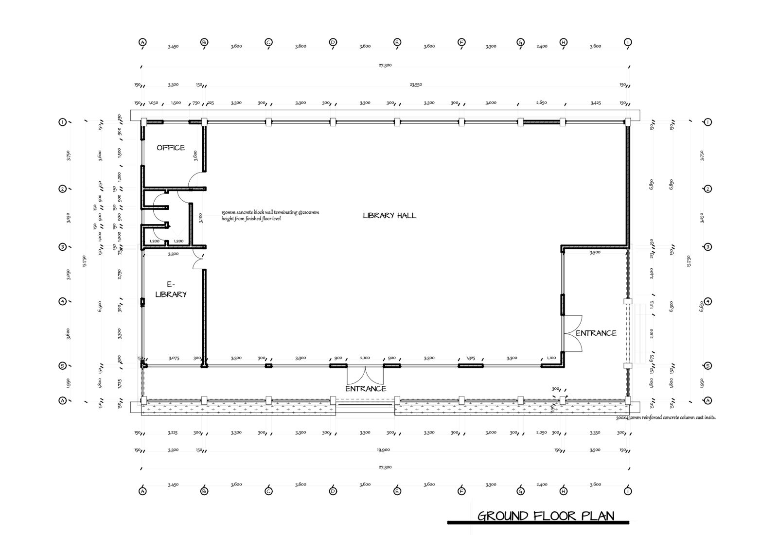
- Drafting and development of a modern library architectural plan
- Reconstructing the interior layout to include reading zones and structured learning areas
- New shelves, tables, chairs, and learning materials
- Enhanced lighting, ventilation, and electrical upgrades
- Creating a conducive environment that supports literacy and digital access
Current Progress
Work has already started. Gramaze has completed the drafting of a new modernization plan for the library and reconstruction activities are currently underway.
The goal is to deliver a fully functional, modern, and student-focused library that will serve Ozuitem community for many years.
This intervention reflects our mission at Gramaze Network to make long-term, sustainable impact in education, community growth, and youth development.























